Doppelturnhalle Pestalozzi
Rorschach
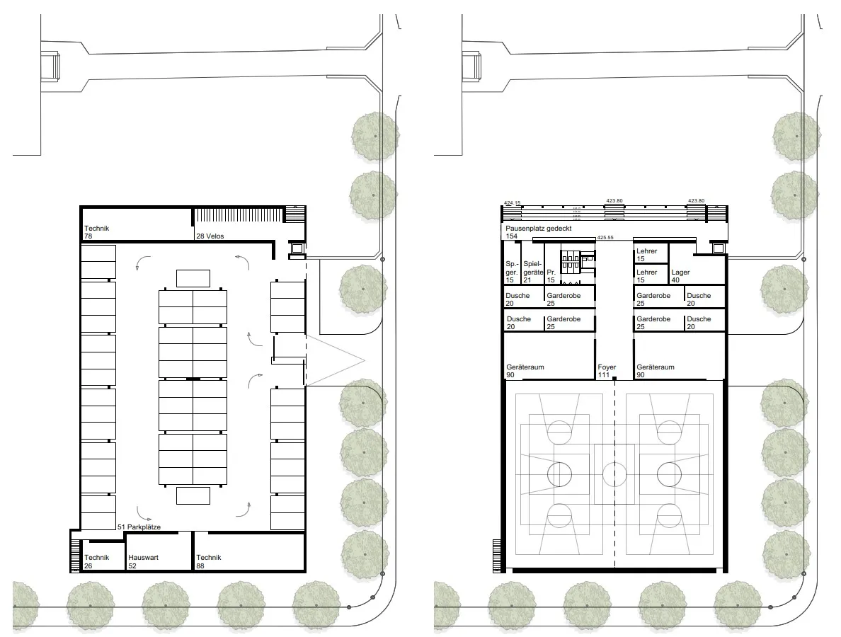
Nachhaltige Doppelturnhalle in Holzbauweise mit öffentlicher Tiefgarage
Bauherrschaft
Stadt Rorschach
Architektur
Itten+Brechbühl AG, St. Gallen
Rang 1
2025
Nachhaltige Doppelturnhalle in Holzbauweise mit öffentlicher Tiefgarage
Bauherrschaft
Stadt Rorschach
Architektur
Itten+Brechbühl AG, St. Gallen
Rang 1
2025