Holliger O1
Bern
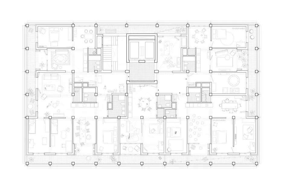
Wohnhochhaus in Holzbauweise
Bauherrschaft
Eisenbahner Baugenossenschaft Bern
Architektur
Jaeger Koechlin Architekten ETH BSA SIA, Basel
Rang 1
2021
Wohnhochhaus in Holzbauweise
Bauherrschaft
Eisenbahner Baugenossenschaft Bern
Architektur
Jaeger Koechlin Architekten ETH BSA SIA, Basel
Rang 1
2021