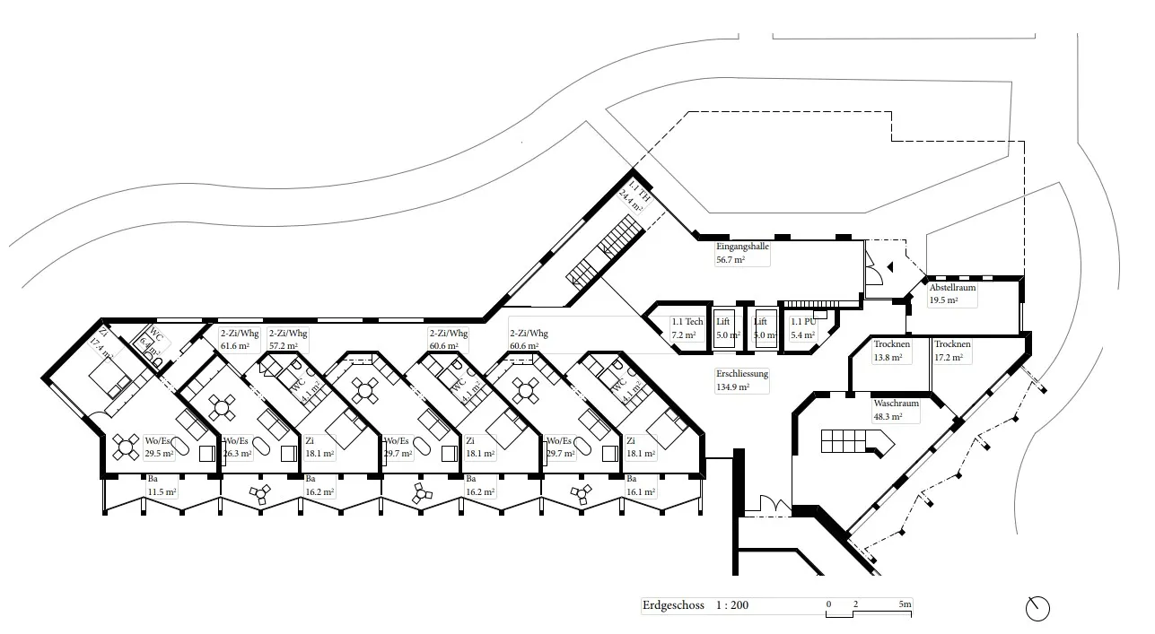
Sanierung und Erweiterung Alterszentrum "Sonnenhof"
Wil
Sanierung und Erweiterung Alterszentrum mit energetischer Ertüchtigung
Bauherrschaft
Thurvita AG, Wil
Architektur
ARGE Seiler architects & Rujbr Architekten, Zürich
Rang 3
2020
Sanierung und Erweiterung Alterszentrum mit energetischer Ertüchtigung
Bauherrschaft
Thurvita AG, Wil
Architektur
ARGE Seiler architects & Rujbr Architekten, Zürich
Rang 3
2020