Schulanlage Weiden
Rapperswil
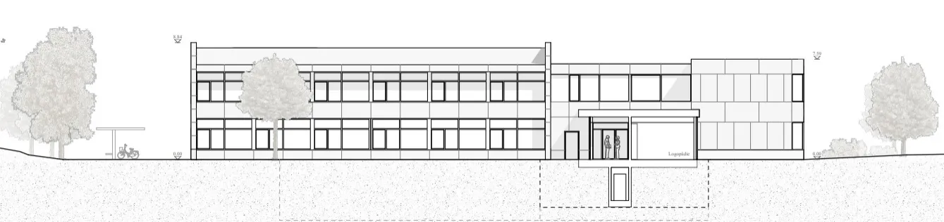
Schulraumerweiterung in Holzbauweise
Bauherrschaft
Stadt Rapperswil-Jona
Gesamtleistung
schaerholzbau AG, Altbüron
Architektur
Hummburkart Architekten, Luzern
Rang 1
2024
Schulraumerweiterung in Holzbauweise
Bauherrschaft
Stadt Rapperswil-Jona
Gesamtleistung
schaerholzbau AG, Altbüron
Architektur
Hummburkart Architekten, Luzern
Rang 1
2024