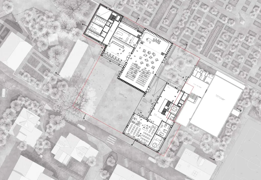
Schulhaus Pfarrmatte

Escholzmatt

Neubau Schulhaus, Gemeindesaal mit Bühne, Pfarreisaal

Bauherrschaft
Gemeindeverwaltung Escholzmatt-Marbach

Architektur
ARGE Werk.Architekten Genossenschaft, Langnau und Morger Partner Architekten AG, Langnau

Rang 2

2020

Mehrere Gebäude aus Holz