Tagesstrukturen
Hallwil
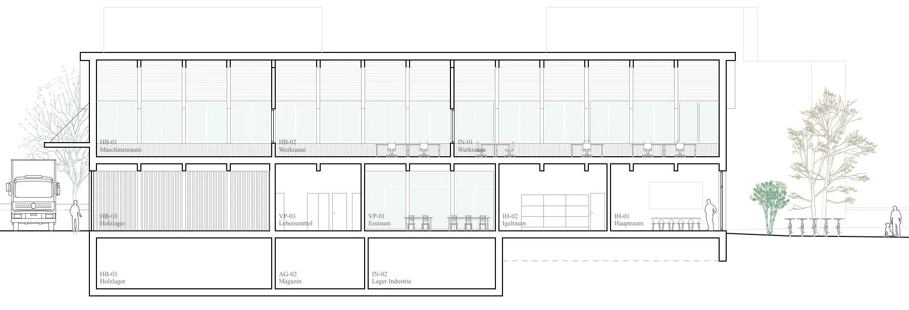
Zweigeschossiger Neubau in Holzbauweise mit klarer Raumstruktur, nachhaltigen Materialien und identitätsstiftenden Freiräumen
Bauherrschaft
Stiftung Satis, Seon
Architektur
Hummburkart Architekten, Luzern
Rang 3
2025
Zweigeschossiger Neubau in Holzbauweise mit klarer Raumstruktur, nachhaltigen Materialien und identitätsstiftenden Freiräumen
Bauherrschaft
Stiftung Satis, Seon
Architektur
Hummburkart Architekten, Luzern
Rang 3
2025