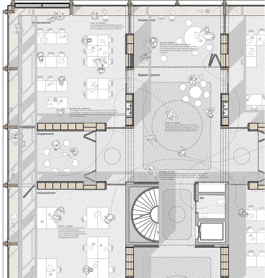
Schulanlage
Galgenen
Erweiterung Schulanlage in Holzbauweise
Bauherrschaft
Gemeinde Galgenen, Siebnen
Architektur
Bob Gysin Partner Architekten ETH SIA BSA, Zürich
Visualisierung
© Renderisch GmbH, Zürich
Rang 2
2025
Erweiterung Schulanlage in Holzbauweise
Bauherrschaft
Gemeinde Galgenen, Siebnen
Architektur
Bob Gysin Partner Architekten ETH SIA BSA, Zürich
Visualisierung
© Renderisch GmbH, Zürich
Rang 2
2025