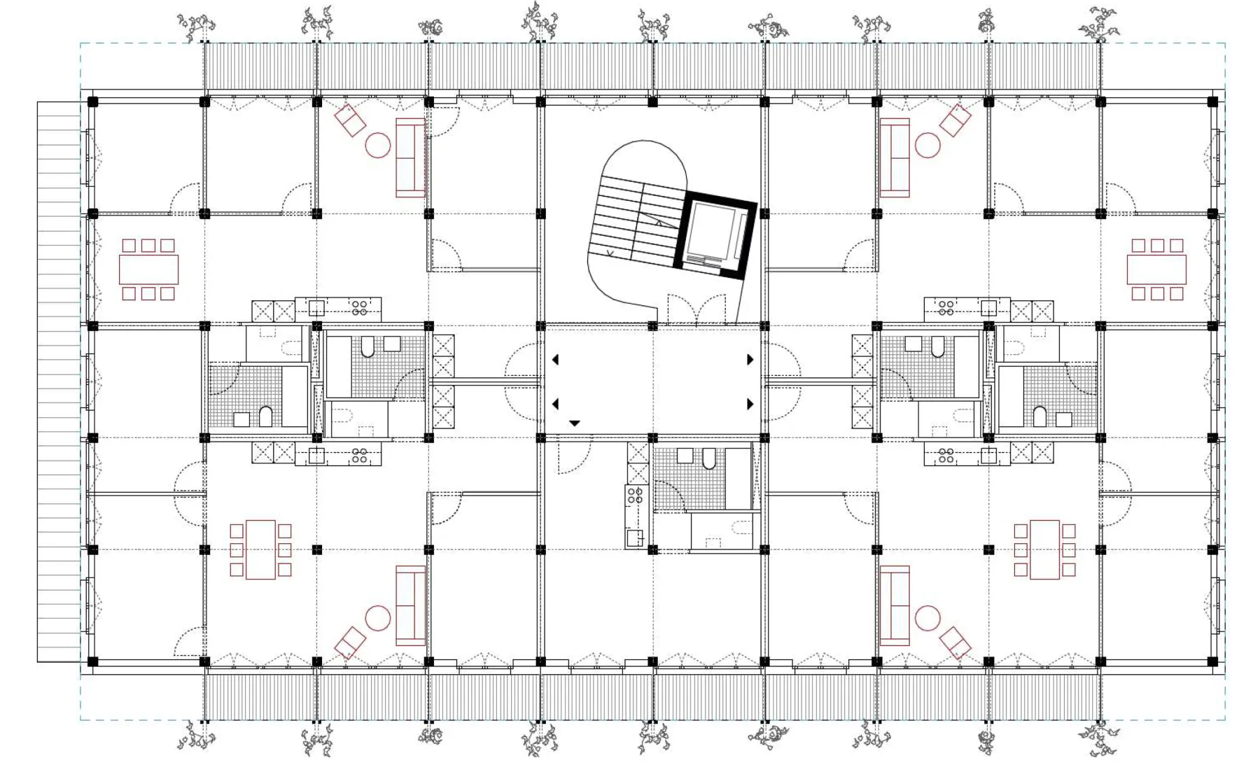
Wohnhaus Hardstrasse
Birsfelden
Nachhaltiges Wohnbauprojekt nach dem Prinzip "Design for Disassembly"
Bauherrschaft
Wohnstadt Bau- und Verwaltungsgenossenschaft, Basel
Architektur
Jaeger Koechlin Architekten ETH BSA SIA, Basel
Rang 1
Nachhaltiges Wohnbauprojekt nach dem Prinzip "Design for Disassembly"
Bauherrschaft
Wohnstadt Bau- und Verwaltungsgenossenschaft, Basel
Architektur
Jaeger Koechlin Architekten ETH BSA SIA, Basel
Rang 1